Home Bio

HM4000

“A true celebration of elegant horizontal lines with dramatically modern and spacious interiors.”

CLICK ON IMAGE TO VIEW MOVIE


^ See Purchasing Options 

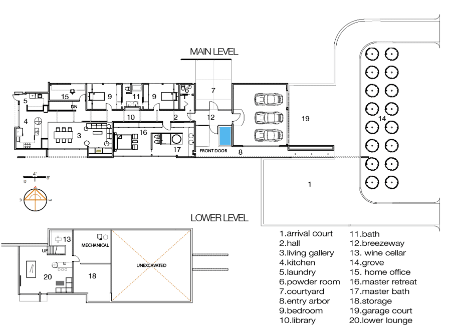
You can have it all ... in 4000 square feet of living space. This one and a half story home has the HMH "grand master suite" along with two or three additional bedrooms that share a bath. The covered entry foyer of the center hall design creates a feeling of grandeur that is generally reserved for much larger homes. Other features of the main level include a modernist arbored courtyard, home office and three-car garage loaded with storage capacity. An efficient and sleek design that enables you to live on one level if you wish.


;"

The front half of the home is built slab on grade and the back half has a lower lounge that fronts on a private garden spot. The architects have left the remaining area unassigned and we can adapt it to suit your unique desire or need. Options might include a home gym, media room or fourth bedroom. The guest arrival court and trellised main entry exude an refined elegance seldom found in home design today. It’s Time!

CLICK ON IMAGES TO ENLARGE



Stories/levels
  2 Total project width   177 ft. Total Bathrooms   2 or 3 full, 1 half
Lower level area   1045 sf Total project depth   43 ft Media center   yes
Main level area   2955 sf Total height   23 ft Wine cellar   yes
Total area- living   4000 sf Master   Main level Home office   yes
Total bedrooms   3 or 4            


CLICK HERE TO VIEW INFO ABOUT HMH PLANS AND PRODUCTS

HM4000 - Review Set $2,600.00
includes: on 24"X36" titled sheets : SITE PLAN / FLOOR PLANS / CEILING PLANS/ ELECTRIC PLANS / FRAMING PLANS / ELEVATIONS / BUILDING SECTIONS / WALL SECTIONS / DETAILS AND SPECIFICATIONS / MULTIPLE 3D VIEWS
PURCHASE OF A REVIEW SET DOES NOT INCLUDE A LICENSE TO CONSTRUCT THE HOME
TO PURCHASE A LICENSE TO CONSTRUCT THE HOME PLEASE UPGRADE TO THE CONSTRUCTION SET WITHIN 60 DAYS INFO@HIGHMODERNHOMES.COM

HM4000 - Construction Set (LICENSED) $2,800.00
includes: (5FULL SETS) on 24"X36" titled sheets : SITE PLAN / FLOOR PLANS / CEILING PLANS/ ELECTRIC PLANS / FRAMING PLANS / ELEVATIONS / BUILDING SECTIONS / WALL SECTIONS / DETAILS AND SPECIFICATIONS / MULTIPLE 3D VIEWS
PURCHASE OF THE CONSTRUCTION SET INCLUDES A LICENSE TO CONSTRUCT THE HOME
TO PURCHASE ADDITIONAL SETS PLEASE CONTACT US WITHIN 60 DAYS OF YOUR INITIAL PURCHASE INFO@HIGHMODERNHOMES.COM

HM4000 - Construction Set CAD File $5,600.00
includes DWG CAD Files of SITE PLAN / FLOOR PLANS / CEILING PLANS / FRAMING PLANS / ELEVATIONS / BUILDING SECTIONS / WALL SECTIONS / DETAILS AND SPECIFICATIONS / HMH MATERIAL SAMPLE SHEET / MULTIPLE 3D VIEWS
HM4000 - Options
  HM4000 - Multi Use Fee  $700.00
  HM4000 - Reverse Construction Set  $350.00
View Cart

^ Back to top