Home Bio

HM3500T

“A minimal and refined layering of forms creates an L shaped plan for ... the way we live now.”

CLICK ON IMAGE TO VIEW MOVIE


^ See Purchasing Options 

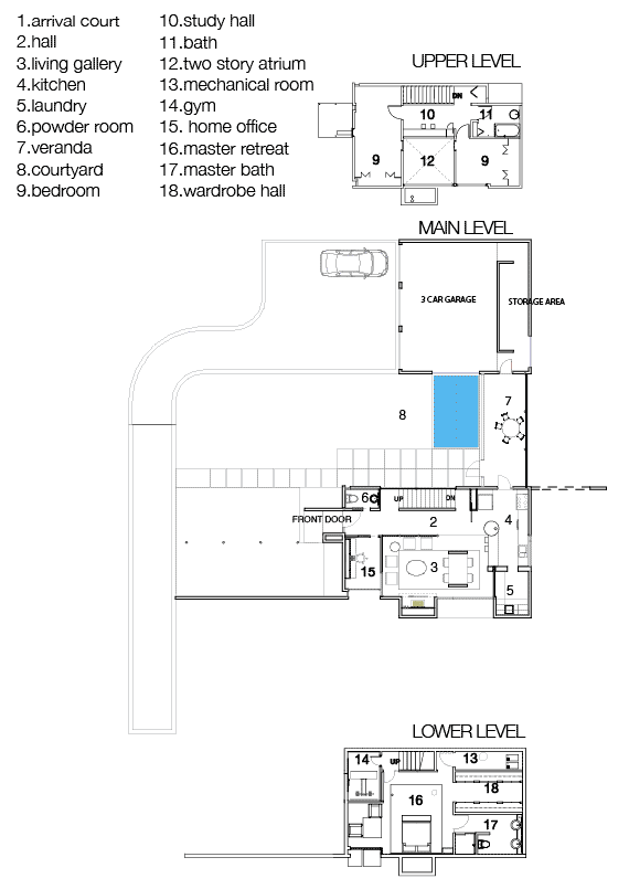
At 3500 square foot this design features a large screened in summer pavilion bridging the central courtyard and flanked by the reflecting pool, which could also become a swimming pool. As with all foundation series homes the refined design of the main level houses all public spaces within the skylit two story atrium volume. Dining zone, laundry and Bistro kitchen are all large, well planned and very convenient. Beechwood cabinets exude a feeling of warmth and richness within the bright, naturally lit interiors. .




The High style warmth of the interiors is punctuated by generously glazed walls. Designed as a modernist vessel for living and playing the 3500T is a great place to BE . It’s Time!

CLICK ON IMAGES TO ENLARGE



Stories/levels
  3 Total project width   68 ft. Total Bathrooms   2 full, 1 half
Lower level area   1025 sf Total project depth   85 ft Media center   no
Main level area   1390 sf Total height   31 ft Wine cellar   no
Upper level area   1085 sf Master   Lower level Home office   yes
Total area- living   3500 sf Total bedrooms   3 or 4      


CLICK HERE TO VIEW INFO ABOUT HMH PLANS AND PRODUCTS

HM3500T -Review Set $2,275.00
includes: on 24"X36" titled sheets : SITE PLAN / FLOOR PLANS / CEILING PLANS/ ELECTRIC PLANS / FRAMING PLANS / ELEVATIONS / BUILDING SECTIONS / WALL SECTIONS / DETAILS AND SPECIFICATIONS / MULTIPLE 3D VIEWS
PURCHASE OF A REVIEW SET DOES NOT INCLUDE A LICENSE TO CONSTRUCT THE HOME
TO PURCHASE A LICENSE TO CONSTRUCT THE HOME PLEASE UPGRADE TO THE CONSTRUCTION SET WITHIN 60 DAYS INFO@HIGHMODERNHOMES.COM

HM3500T - Construction Set (LICENSED) $2,450.00
includes: (5FULL SETS) on 24"X36" titled sheets : SITE PLAN / FLOOR PLANS / CEILING PLANS/ ELECTRIC PLANS / FRAMING PLANS / ELEVATIONS / BUILDING SECTIONS / WALL SECTIONS / DETAILS AND SPECIFICATIONS / MULTIPLE 3D VIEWS
PURCHASE OF THE CONSTRUCTION SET INCLUDES A LICENSE TO CONSTRUCT THE HOME
TO PURCHASE ADDITIONAL SETS PLEASE CONTACT US WITHIN 60 DAYS OF YOUR INITIAL PURCHASE INFO@HIGHMODERNHOMES.COM

HM3500T - Construction Set CAD File $4,900.00
includes DWG CAD Files of SITE PLAN / FLOOR PLANS / CEILING PLANS / FRAMING PLANS / ELEVATIONS / BUILDING SECTIONS / WALL SECTIONS / DETAILS AND SPECIFICATIONS / HMH MATERIAL SAMPLE SHEET / MULTIPLE 3D VIEWS
HM3500T - Options
  HM3500T - Reverse Construction Set  $310.00
  HM3500T - Multi Use Fee  $615.00
View Cart

^ Back to top