Home Bio

HM2000

“Clean, attenuated, sleek, and timeless in its modern appeal; An energy efficient and environmentally sensitive design that's classically representative of high modern architecture.”

CLICK ON IMAGE TO VIEW MOVIE


^ See Purchasing Options 

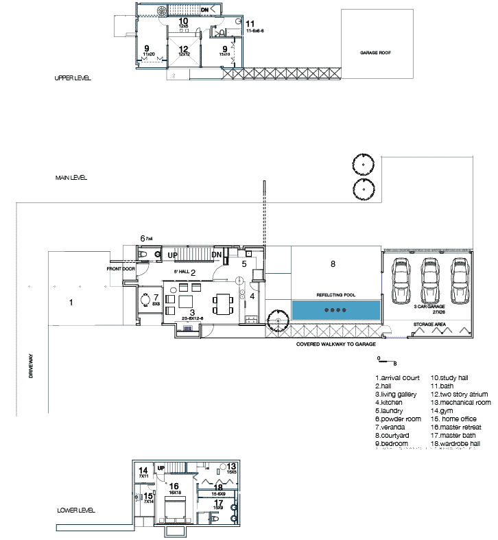
A beatifully simple design that comfortably accommodates a young family. The open and bright main level houses all the public living areas and is enhanced by a double height living room that makes the spaces live and feel large. The dining room fronts onto the bistro kitchen where beechwood cabinets exude a feeling of warmth. The first floor laundry is centrally located, and the courtyard and reflecting pool offer a peaceful, private retreat.


;"

The lower level houses a true master suite, including a small fitness room and a home office. With plenty of closet space for both in and out of season wardrobes it's luxurious for a home this size. Two bedrooms plus a full bath are located on the third level and library/ study bridge looks into the multistory living area. This HMH home design feels larger inside than it's 2000 sq. feet and its curb appeal implies a much bigger residence.It’s Time!

CLICK ON IMAGES TO ENLARGE



Stories/levels
  3 Total project width   96 ft. Total Bathrooms   2 full, 1 half
Lower level area   690 sf Total project depth   25 ft Media center   no
Main level area   720 sf Total height   31 ft Wine cellar   no
Upper level area   590 sf Master   Lower level Home office   yes
Total area- living   2000 sf Total bedrooms   3      


CLICK HERE TO VIEW INFO ABOUT HMH PLANS AND PRODUCTS

HM2000 - Review Set $1,300.00
includes: on 24"X36" titled sheets : SITE PLAN / FLOOR PLANS / CEILING PLANS/ ELECTRIC PLANS / FRAMING PLANS / ELEVATIONS / BUILDING SECTIONS / WALL SECTIONS / DETAILS AND SPECIFICATIONS / MULTIPLE 3D VIEWS
PURCHASE OF A REVIEW SET DOES NOT INCLUDE A LICENSE TO CONSTRUCT THE HOME
TO PURCHASE A LICENSE TO CONSTRUCT THE HOME PLEASE UPGRADE TO THE CONSTRUCTION SET WITHIN 60 DAYS INFO@HIGHMODERNHOMES.COM

HM2000 - Construction Set (LICENSED) $1,400.00
includes: (5FULL SETS) on 24"X36" titled sheets : SITE PLAN / FLOOR PLANS / CEILING PLANS/ ELECTRIC PLANS / FRAMING PLANS / ELEVATIONS / BUILDING SECTIONS / WALL SECTIONS / DETAILS AND SPECIFICATIONS / MULTIPLE 3D VIEWS
PURCHASE OF THE CONSTRUCTION SET INCLUDES A LICENSE TO CONSTRUCT THE HOME
TO PURCHASE ADDITIONAL SETS PLEASE CONTACT US WITHIN 60 DAYS OF YOUR INITIAL PURCHASE INFO@HIGHMODERNHOMES.COM

HM2000 - Construction Set CAD File $2,800.00
includes DWG CAD Files of SITE PLAN / FLOOR PLANS / CEILING PLANS / FRAMING PLANS / ELEVATIONS / BUILDING SECTIONS / WALL SECTIONS / DETAILS AND SPECIFICATIONS / HMH MATERIAL SAMPLE SHEET / MULTIPLE 3D VIEWS
HM2000 - Options
  HM2000 - Reverse Construction Set  $175.00
  HM2000 - Multi Use Fee  $350.00
View Cart

^ Back to top